ONGOING PROJECTS

VIGNESH KRISHNA

VIGNESH – KRISHNA - 3D PLAN

Location: DOOR NO.3/1, GANGAIYA AVENUE MAIN ROAD, RAMAPURAM, CHENNAI – 89.

VIGNESH KRISHNA

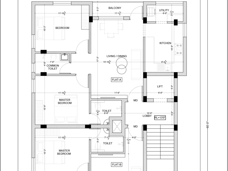
VIGNESH – KRISHNA - FLOOR PLAN

Constructed Area :11655 sq.ft, No.of Units :12 nos, stilt +3 floor

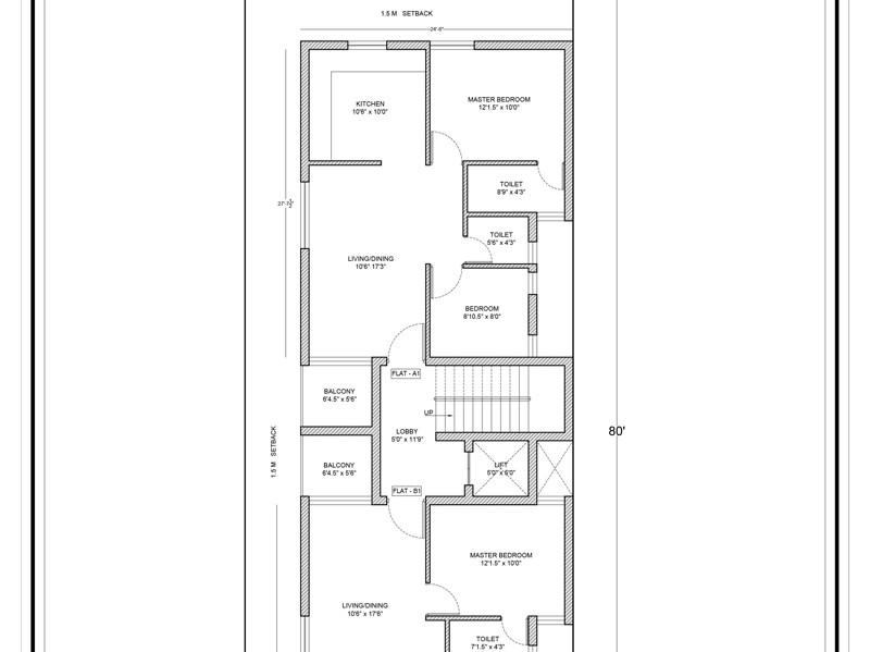
VIGNESH – NATHANS NEST - FLOOR PLAN

Constructed Area :8627 sq.ft, No.of Units :8 nos, stilt +3 floor

VIGNESH – KIRUPA - 3D PLAN

Location: OLD NO.46B, NEW NO.96, 7th AVENUE, ASHOKNAGAR, CHENNAI – 600 083.

VIGNESH – KIRUPA - FLOOR PLAN

Constructed Area :5410 sq.ft, No.of Units :3 UNITS (EACH FLOOR HAVE 1 UNIT), stilt +3 floor

VIGNESH – ENCLAVE - 3D PLAN

Location: Door No.7, 42nd street, Ashoknagar, Chennai – 600 083.

Floor Plan

Constructed Area :10440 sq.ft , No.of Units - 8nos Stilt +5 floors